2500 Eden Township Road Greater Sudbury, Ontario P3G 1M1

3 Bedroom 2 Bathroom
Bungalow Fireplace Heat Pump, In Floor Heating, Wood Stove Waterfront On Lake Acreage

$2,475,000

This is the unicorn you’ve been waiting for—6.8 acres with nearly 300 feet of water frontage on what every Long Laker knows as Sudbury’s best lake. A once-in-a-lifetime opportunity, this property offers the privacy and tranquility you’ve been dreaming of. Most of the acreage remains natural and untouched, while the waterfront area has been thoughtfully developed with a sprawling landscaped lawn. There’s more than enough space for all activities. The 2500 square foot slab on grade bungalow has comfortable in-floor heating throughout, with three spacious bedrooms, and two full bathrooms. The en-suite off the primary bedroom is an absolute spa get away. The great room has the most stunning views of the lake with 14 foot cathedral ceilings highlighted by the stone wood fireplace. There is a wet bar off the living room for convenient entertaining. The kitchen is stunning with a granite island built for large gatherings. The family room has vaulted ceilings and offers a second recreational space or TV room. It leads to your 3 season porch. The lakeside has some great features including a custom fire pit sitting area and the covered outdoor kitchen with cabinets, prep area, sink and granite countertops. At the lake you have another deck with a gazebo and no waterfront home is complete without the wood burning sauna and outdoor shower. The waterfront offers the most beautiful shallow sand that you can walk out for hundreds of feet. The original garage has been converted to a Bunkie for the kids and guests. With two bedrooms and a space for a bathroom. The brand-new 60 x 40 completely finished garage provides endless possibilities. With a state-of-the-art boiler system creating the perfect in-floor heat. Whether it's for your vehicles or toys, this addition makes the property as practical as it is beautiful. The whole property back-up generator offer country living peace of mind. This unique combination of space, privacy, and pristine lakefront living is unmatched. (id:38174)

Property Details

MLS® Number 2124833
Property Type Single Family
Amenities Near By Ski Area, University
Community Features Fishing, Lake Privileges, Quiet Area, Rural Setting
Equipment Type None
Rental Equipment Type None
Storage Type Storage Shed
Structure Dock, Shed, Patio(s)
Water Front Type Waterfront On Lake

Building

Bathroom Total 2
Bedrooms Total 3
Appliances Sauna
Architectural Style Bungalow
Basement Type None
Exterior Finish Wood, Wood Siding
Fire Protection Smoke Detectors
Fireplace Fuel Wood
Fireplace Present Yes
Fireplace Total 1
Fireplace Type Woodstove
Flooring Type Hardwood, Tile, Vinyl
Foundation Type Concrete Slab
Heating Type Heat Pump, In Floor Heating, Wood Stove
Roof Material Asphalt Shingle
Roof Style Unknown
Stories Total 1
Type House

Parking

Detached Garage

Land

Access Type Year-round Access
Acreage Yes
Fence Type Not Fenced
Land Amenities Ski Area, University
Sewer Septic System
Size Total Text 3 - 10 Acres
Zoning Description Sls

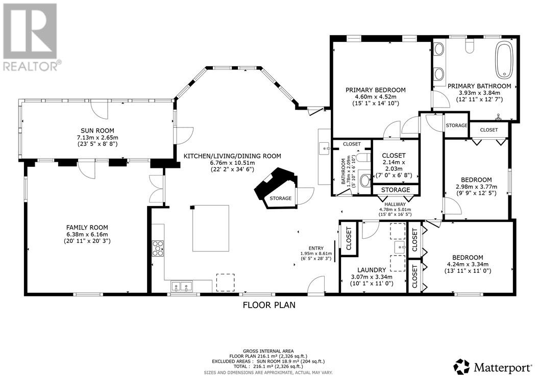
Rooms

Level Type Dimensions
Main Level Bedroom 13.11 x 11.0
Main Level Bedroom 9.9 x 12.5
Main Level 4pc Ensuite Bath 12.11 x 12.7
Main Level Primary Bedroom 15.1 x 14.10
Main Level 2pc Bathroom 5.10 x 6.10
Main Level Laundry Room 10.1 x 11
Main Level Sunroom 23.5 x 8.8
Main Level Family Room 20.11 x 20.3
Main Level Living Room/dining Room 22.2 x 34.6
Main Level Foyer 6.5 x 28.3

https://www.realtor.ca/real-estate/28906037/2500-eden-township-road-greater-sudbury

Contact Us

Contact us for more information

Generating Captcha

RE/MAX Crown Realty (1989) Inc., Brokerage (Sudbury)
1349 Lasalle Blvd Suite 208
Sudbury, Ontario P3A 1Z2

(705) 560-5650
(800) 601-8601
(705) 560-9492
www.remaxcrown.ca/

RE/MAX Crown Realty (1989) Inc., Brokerage (Sudbury)
1349 Lasalle Blvd Suite 208
Sudbury, Ontario P3A 1Z2

(705) 560-5650
(800) 601-8601
(705) 560-9492
www.remaxcrown.ca/

Your Favourites

 

No Favourites Found

 

What's Your Home Worth?

let's connect.