3694 Dill Lake Road Greater Sudbury, Ontario P3E 4N1

3 Bedroom 2 Bathroom
Bungalow Fireplace Central Air Conditioning Forced Air Acreage

$595,900

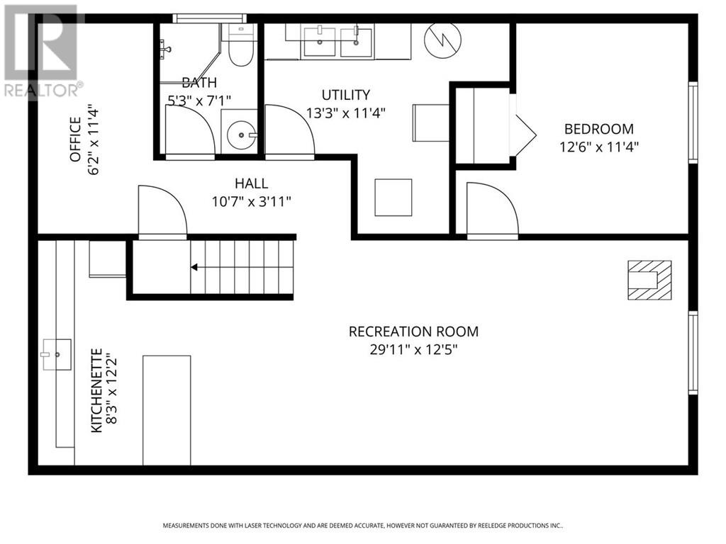
Enjoy true country living with privacy on just over 7 acres, while still being 10 minutes from town, the perfect blend of space and convenience. This solid all brick bungalow features a brand new kitchen with open concept flow to the dining and living areas, ideal for everyday living and gatherings. A charming front porch offers a peaceful spot to enjoy your morning coffee and the surrounding nature. The main level includes two spacious bedrooms and a full bathroom. Downstairs is warm and inviting, an ideal entertainer's retreat featuring a pellet stove in the recroom for cozy evenings, a full bar area with fridge, an oversized recreation space, and additional bedroom, a second bathroom, a dedicated office/desk area, and a laundry room. Outside this property truly shines with an attached garage and breezeway, plus a substantial 39' x 26' detached garage with lean to, a woodshed and a separate driveway, perfect for storing toys, equipment, or creating a workshop. With multiple outbuildings and a functional layout, there's plenty of room for hobbies, projects or a home based business. This well laid out rural property offers space, privacy, warmth, and versatility, and is ready for you to make it home . (id:38174)

Property Details

MLS® Number 2125979
Property Type Single Family
Amenities Near By Golf Course, Hospital, Shopping
Equipment Type Propane Tank
Rental Equipment Type Propane Tank

Building

Bathroom Total 2
Bedrooms Total 3
Architectural Style Bungalow
Basement Type Full
Cooling Type Central Air Conditioning
Exterior Finish Brick
Fireplace Fuel Pellet
Fireplace Present Yes
Fireplace Total 1
Fireplace Type Free Standing Metal
Foundation Type Concrete
Heating Type Forced Air
Roof Material Asphalt Shingle
Roof Style Unknown
Stories Total 1
Type House
Utility Water Drilled Well

Parking

Attached Garage
Detached Garage

Land

Access Type Year-round Access
Acreage Yes
Land Amenities Golf Course, Hospital, Shopping
Sewer Septic System
Size Total Text 3 - 10 Acres
Zoning Description Ru

Rooms

Level Type Dimensions
Basement Den 10.9 x 5.8
Basement Bathroom 7 x 5.6
Basement Bedroom 12.6 x 10.7
Basement Family Room 36.3 x 13.3
Main Level Primary Bedroom 11.5 x 11
Main Level Bedroom 11.5 x 10.3
Main Level Living Room 17.6 x 13.30
Main Level Kitchen 20 x 10

https://www.realtor.ca/real-estate/29214989/3694-dill-lake-road-greater-sudbury

Contact Us

Contact us for more information

Generating Captcha

Coldwell Banker - Charles Marsh Real Estate, Brokerage
1090 Lasalle Blvd.
Sudbury, Ontario P3A 1X9

(705) 566-6111
(800) 341-7473
(705) 566-9438
www.coldwellbankersudbury.com/

Coldwell Banker - Charles Marsh Real Estate, Brokerage
1090 Lasalle Blvd.
Sudbury, Ontario P3A 1X9

(705) 566-6111
(800) 341-7473
(705) 566-9438
www.coldwellbankersudbury.com/

Your Favourites

 

No Favourites Found

 

What's Your Home Worth?

let's connect.