1305 Rose Marie Avenue Sudbury, Ontario P3A 4E4

3 Bedroom 2 Bathroom
Bungalow Fireplace Central Air Conditioning Forced Air Fruit Trees/shrubs

$489,900

Open house Today, Wednesday, April 22 5-7pm. Welcome to 1305 Rose Marie Avenue, a beautifully maintained 3-bedroom bungalow located in the heart of prime New Sudbury, offering an ideal blend of comfort, thoughtful updates, and unbeatable location. Step inside to a bright eat-in kitchen filled with natural light, featuring a patio door walkout to a huge deck—perfect for entertaining, summer BBQs, or simply enjoying quiet evenings outdoors. The inviting living room showcases gleaming hardwood floors and elegant French doors, adding warmth and character to the space. The main floor offers three well-sized bedrooms, making this home ideal for families, downsizers, or anyone seeking convenient one-level living. Downstairs, the fully finished lower level expands your living space with a spacious rec room complete with a cozy gas fireplace, new flooring, a dedicated laundry area, and plenty of storage. Major updates provide peace of mind, including weeping tiles redone in 2016, shingles replaced in 2021, and a new furnace, central air conditioner, and hot water tank all completed in 2021, along with a fully renovated bathroom. Outside, you’ll find a double lockstone driveway, a child-safe fenced backyard, and two sheds, including a massive storage shed for all your needs. The west-facing backyard offers beautiful afternoon and evening sun, creating the perfect outdoor retreat. Situated in a quiet, family-friendly neighbourhood close to parks, schools, and all amenities, this home is a fantastic opportunity to get into one of Sudbury’s most desirable areas. (id:38174)

Property Details

MLS® Number 2127245
Property Type Single Family
Amenities Near By Golf Course, Playground, Public Transit
Community Features Bus Route, Family Oriented
Equipment Type Water Heater
Rental Equipment Type Water Heater
Road Type Paved Road
Storage Type Storage
Structure Shed

Building

Bathroom Total 2
Bedrooms Total 3
Architectural Style Bungalow
Basement Type Full
Cooling Type Central Air Conditioning
Exterior Finish Brick, Vinyl
Fireplace Present Yes
Fireplace Total 1
Flooring Type Laminate, Tile
Foundation Type Block
Heating Type Forced Air
Roof Material Asphalt Shingle
Roof Style Unknown
Stories Total 1
Type House
Utility Water Municipal Water

Land

Access Type Year-round Access
Acreage No
Fence Type Partially Fenced
Land Amenities Golf Course, Playground, Public Transit
Landscape Features Fruit Trees/shrubs
Sewer Municipal Sewage System
Size Total Text Under 1/2 Acre
Zoning Description R1-5

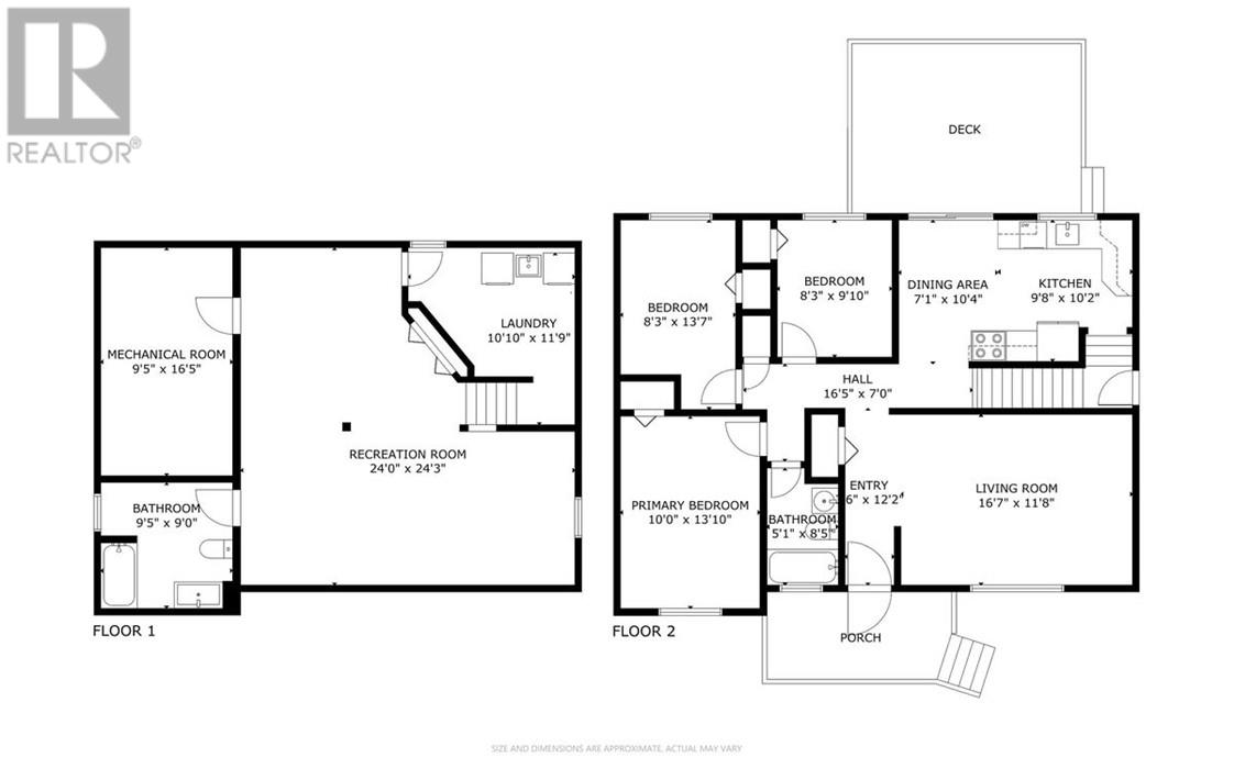
Rooms

Level Type Dimensions
Basement Other 9'5"" x 16'5""
Basement Bathroom 9'5"" x 9'0""
Basement Laundry Room 10'10"" x 11'9""
Basement Recreational, Games Room 24'0"" x 24'3""
Main Level Bathroom 5'1"" x 8'5""
Main Level Bedroom 8'3"" x 9'10""
Main Level Bedroom 8'3"" x 13'7""
Main Level Primary Bedroom 10'0"" x 13'10""
Main Level Dining Room 7'1"" x 10'4""
Main Level Kitchen 9'8"" x 10'2""
Main Level Living Room 16'7"" x 11'8""

https://www.realtor.ca/real-estate/29642652/1305-rose-marie-avenue-sudbury

Contact Us

Contact us for more information

Generating Captcha

RE/MAX Crown Realty (1989) Inc., Brokerage (Sudbury)
1349 Lasalle Blvd Suite 208
Sudbury, Ontario P3A 1Z2

(705) 560-5650
(800) 601-8601
(705) 560-9492
www.remaxcrown.ca/

RE/MAX Crown Realty (1989) Inc., Brokerage (Sudbury)
1349 Lasalle Blvd Suite 208
Sudbury, Ontario P3A 1Z2

(705) 560-5650
(800) 601-8601
(705) 560-9492
www.remaxcrown.ca/

Your Favourites

 

No Favourites Found

 

What's Your Home Worth?

let's connect.