3 Bedroom
2 Bathroom
Bungalow
Baseboard Heaters
$259,900
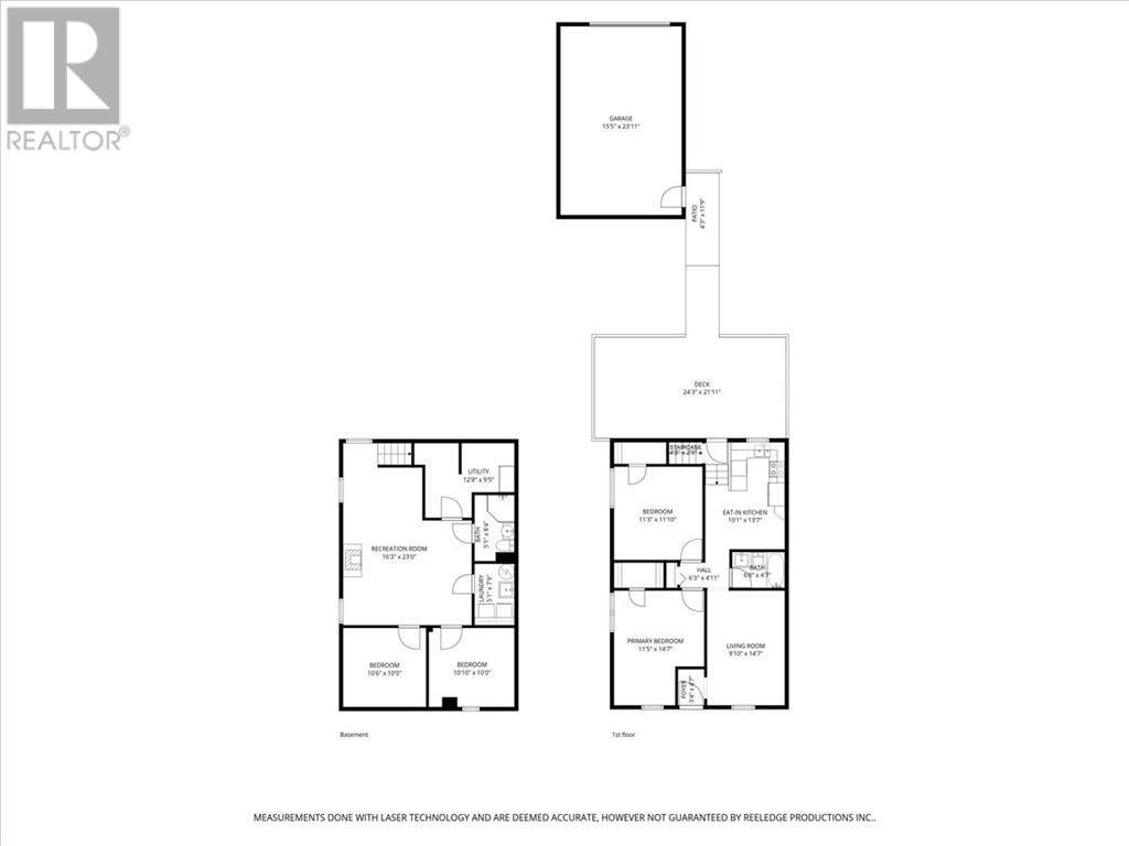
Welcome to this charming 2+1-bedroom, semi-detached home nestled in the quiet community of Levack. Perfect for first time buyers, retirees, or those looking to downsize, this home offers comfortable and affordable living in a peaceful setting. Step inside to find a bright and inviting layout filled with natural light. The main level features two well sized bedrooms, while the lower level offers an additional bedroom plus a den or office, ideal for working from home or extra space to suit your needs. The spacious rec room provides plenty of room for relaxing or entertaining, and outside you’ll find a detached garage with a durable metal roof. Enjoy the convenience of being within walking distance to local amenities, making day to day living easy and accessible. Backing onto the community baseball field, this property offers a unique bonus, perfect for families, with plenty of space for kids to play and hang out just steps from your backyard. A great opportunity to own an affordable home in a welcoming neighbourhood, don’t miss it! (id:38174)
Property Details
|
MLS® Number
|
2127178 |
|
Property Type
|
Single Family |
|
Amenities Near By
|
Schools |
|
Community Features
|
School Bus |
|
Equipment Type
|
Water Heater |
|
Rental Equipment Type
|
Water Heater |
Building
|
Bathroom Total
|
2 |
|
Bedrooms Total
|
3 |
|
Architectural Style
|
Bungalow |
|
Basement Type
|
Full |
|
Exterior Finish
|
Stucco |
|
Flooring Type
|
Hardwood, Laminate |
|
Foundation Type
|
Concrete |
|
Heating Type
|
Baseboard Heaters |
|
Roof Material
|
Asphalt Shingle |
|
Roof Style
|
Unknown |
|
Stories Total
|
1 |
|
Type
|
House |
|
Utility Water
|
Municipal Water |
Parking
Land
|
Access Type
|
Year-round Access |
|
Acreage
|
No |
|
Land Amenities
|
Schools |
|
Sewer
|
Municipal Sewage System |
|
Size Total Text
|
Under 1/2 Acre |
|
Zoning Description
|
R2-2 |
Rooms
| Level |
Type |
Length |
Width |
Dimensions |
|
Basement |
Laundry Room |
|
|
5.1 x 7.9 |
|
Basement |
Bathroom |
|
|
5.1 x 8.4 |
|
Basement |
Den |
|
|
10.6 x 10 |
|
Basement |
Bedroom |
|
|
10 x 10.10 |
|
Basement |
Recreational, Games Room |
|
|
16.3 x 23 |
|
Main Level |
Bathroom |
|
|
6.8 x 4.7 |
|
Main Level |
Bedroom |
|
|
11.3 x 11.10 |
|
Main Level |
Primary Bedroom |
|
|
11.5 x 14.7 |
|
Main Level |
Living Room |
|
|
9.10 x 14.7 |
|
Main Level |
Eat In Kitchen |
|
|
10.1 x 13.7 |
https://www.realtor.ca/real-estate/29619805/28-first-avenue-n-levack