5087 Tilton Lake Road Sudbury, Ontario P3G 1K9

3 Bedroom 2 Bathroom
Log House/cabin Fireplace Central Air Conditioning Forced Air Acreage

$679,900

Welcome to 5087 Tilton Lake Road. A private log home retreat where northern craftsmanship meets quiet, elevated living. Built with logs sourced from the Chapleau region, this home carries the warmth and authenticity of the North, creating a space that feels both grounded and refined. Set on over 4 acres, the property offers privacy, natural beauty, and room to explore. Make your way up the mountain on your own land for sweeping panoramic views of Long Lake and the surrounding forest, a rare perspective that makes this setting truly unforgettable. The landscape presents a clean canvas for those with vision — an ideal setting to bring a perennial garden dream to life, design tiered landscaping, or create a truly personalized outdoor retreat. Inside, the open-concept design is warm and inviting, ideal for both relaxed living and intimate gatherings. A thoughtfully positioned primary bedroom offers comfort and privacy, while a separate sauna and shower area provide a shared space to relax and unwind. Evenings are best spent on the wraparound deck, glass of wine in hand, listening to the gentle stream and taking in the stillness around you. Located just minutes from Kivi Park, Crowley Lake, the South End, and with convenient access to Highway 69, this is where privacy and accessibility come together effortlessly. A rare opportunity to experience space, character and lifestyle, all in one. Schedule your private tour today! (id:38174)

Property Details

MLS® Number 2126780
Property Type Single Family
Equipment Type Water Heater
Rental Equipment Type Water Heater

Building

Bathroom Total 2
Bedrooms Total 3
Architectural Style Log House/cabin
Basement Type Full
Cooling Type Central Air Conditioning
Fireplace Fuel Gas
Fireplace Present Yes
Fireplace Total 1
Fireplace Type Insert
Foundation Type Block, Concrete Perimeter
Half Bath Total 1
Heating Type Forced Air
Roof Material Metal
Roof Style Unknown
Type House
Utility Water Dug Well

Parking

Attached Garage

Land

Acreage Yes
Sewer Septic System
Size Total Text 3 - 10 Acres
Zoning Description Ru

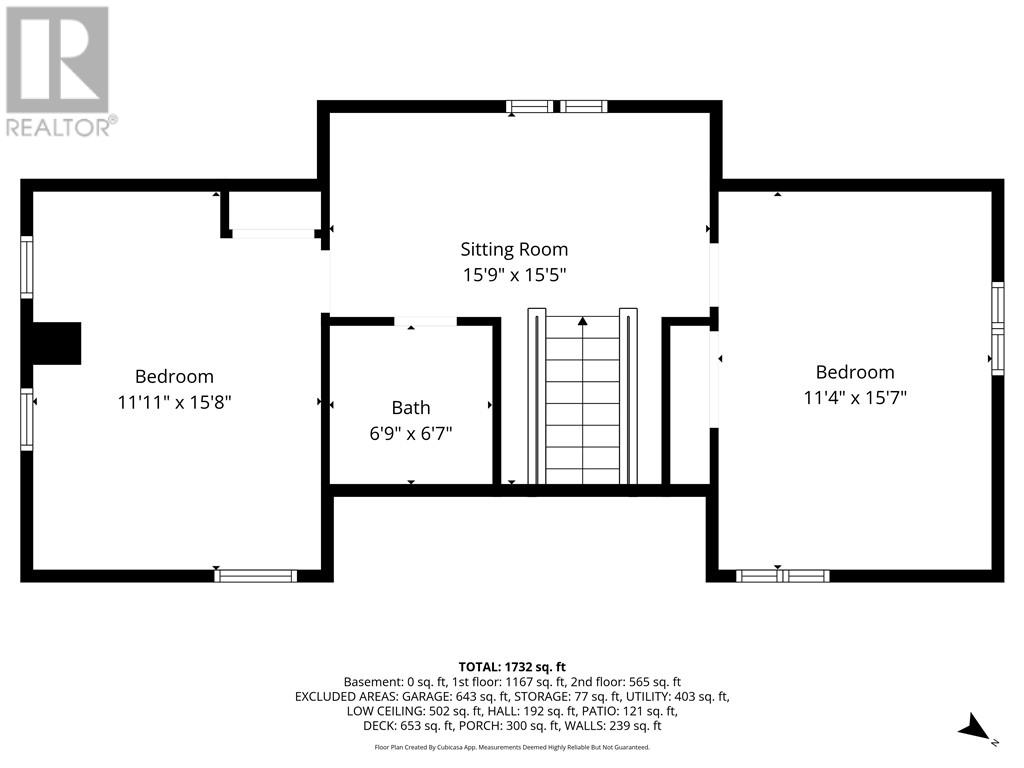
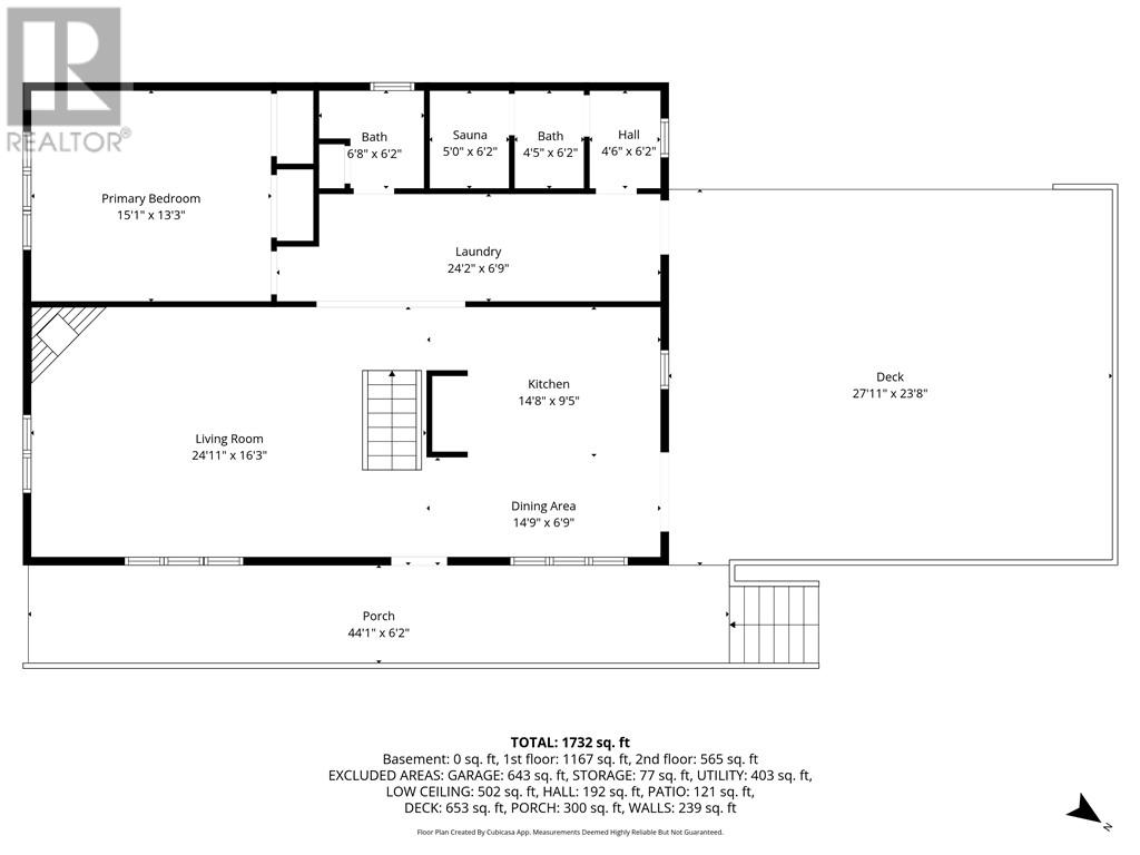
Rooms

Level Type Dimensions
Second Level Other 15'9"" x 15'5""(SITTINGARE)
Second Level Bedroom 15'7"" x 11'4""
Second Level Bedroom 15'8"" x 11'11""
Main Level Primary Bedroom 15'1"" x 13'3""
Main Level Living Room 24'11"" x 16'3""
Main Level Dining Room 14'9"" x 6'9""
Main Level Kitchen 14'8"" x 9'5""

https://www.realtor.ca/real-estate/29518605/5087-tilton-lake-road-sudbury

Contact Us

Contact us for more information

Generating Captcha

Real Broker Ontario Ltd, Brokerage
767 Barrydowne Rd Unit 203-W
Sudbury, Ontario P3E 3T6

(888) 311-1172

Real Broker Ontario Ltd, Brokerage
767 Barrydowne Rd Unit 203-W
Sudbury, Ontario P3E 3T6

(888) 311-1172

Your Favourites

 

No Favourites Found

 

What's Your Home Worth?

let's connect.